ALF SOLD
Caritas Garden Assisted Living and Memory Care
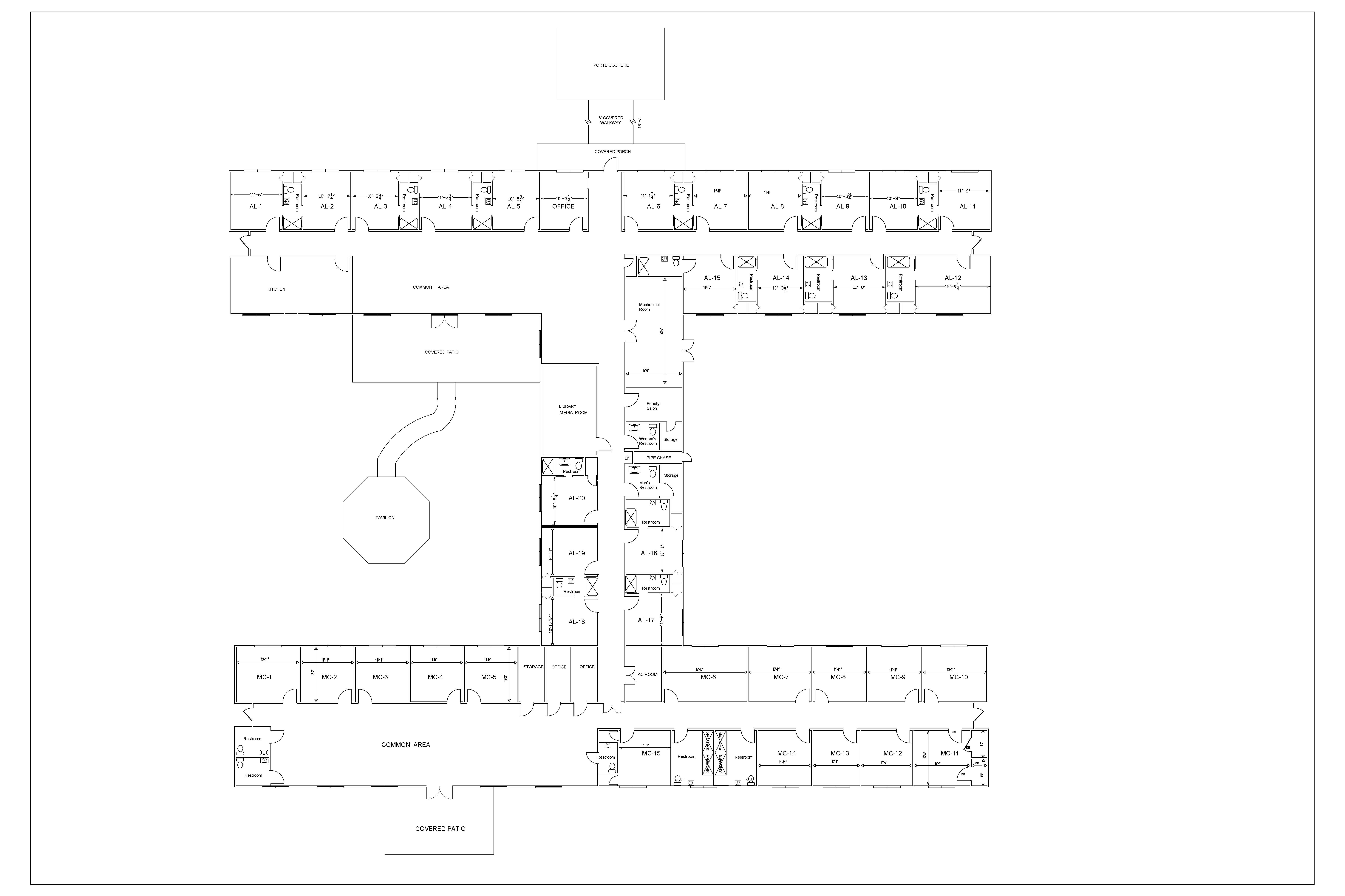
Caritas Gardens will be licensed for 70 beds, 32 of which will be in an isolated Memory Care wing for Alzheimer and Dementia residents. The marketing strategy will be to capture a massively growing demographic, at a lower price point, without compromising the quality of care. In fact, the quality of life and quality of care will far exceed what is offered in the average facility in Northwest Florida. The 3.4 acres allow this facility to offer extraordinary exterior amenities. The principals of this company will be committed to maintaining a fresh, clean and lively environment and render superior service to its residents and their families.
Caritas Gardens will be the first Assisted Living Facility to capitalize on the untapped North Escambia County area markets. There is currently one facility located on West Nine Mile Rd. (Sabal House), which offers a price point that will not compete with Caritas Gardens. There also is a 15-bed facility in Enon (Enon Country Manor in the Walnut Hill area) and a 12-bed facility (Laurelwood) on Ten Mile Rd. Apart from these facilities, there are currently no Assisted Living Facilities in Florida north of Nine Mile Rd. The principals of Caritas Gardens are committed to providing unrivaled care and services. Caritas Gardens will be positioned for tremendous success.




